Skip to main content
Anne Remue Architect

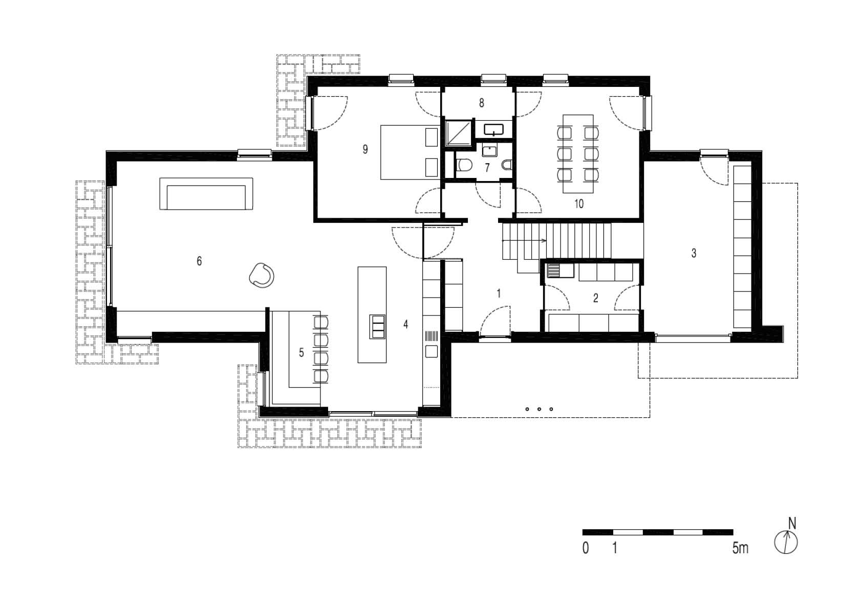
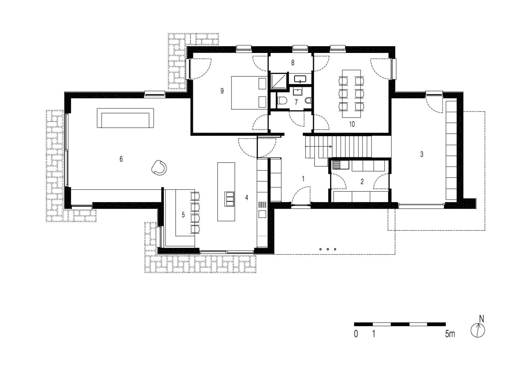
Eengezinswoning met architectenbureau

Groene luifels garanderen natuurlijke verkoeling

Dankzij haar vorm, het uitgekiende materiaalgebruik en de specifieke kleurkeuze is deze eengezinswoning met architectenbureau perfect ingebed in de groene omgeving. Het idee was om oververhitting via de zuid- en westgerichte glaspartijen te vermijden door middel van schaduwrijke en verkoelende klimplanten op drie stalen luifels. Deze laatste zijn telkens opgebouwd uit drie vlakken, ingedeeld in segmenten met een wederkerend patroon en opgehangen tussen stalen vinnen die aan de ruwbouw bevestigd zijn.

De doorgedreven eenvoud in modulatie en ontwerp zorgde voor een eenvoudige fabricatie en montage, die werden uitgevoerd door een plaatselijke ambachtsman. Alle luifels bestaan uit koudgevormde kokerprofielen (80x40x3 mm en 40x40x3 mm), die voor de montage gemetalliseerd en gemoffeld zijn in RAL-kleur olijfzwart. In totaal zijn er 33 ophangvinnen en 26 invulroosters gebruikt. Om een luifeloppervlakte van 40 m² te creëren, was 1 ton staal nodig.

  • Ten Doorn 21, Grimbergen
    Plaats
  • Architect Anne Remue
    Opdrachtgever
  • Anne Remue, Beigem (Grimbergen)
    Architect / Ontwerper
  • Theys & Zn, Perk
    Staalbouwer
  • Anne Remue Architect
    Foto